トップページ | Object Intelligence | Shirokane The Sky (EAST) Room 629

 
■Property Name/Shirokane The Sky (EAST) Room 629
■Address/1-chome Shirokane, Minato-ku, Tokyo
■Transportation/3 min walk from Toei Mita Line & Tokyo Metro Namboku Line "Shirokane-Takanawa" Station
■Land Tenure/Freehold
■Structure/RC (Reinforced Concrete), 45 floors above ground and 1 basement floor, located on the 6th floor
■Built Date/February 2023
■Sellers (Developers)/Nomura Real Estate Development Co., Ltd. and 4 other companies
■Construction/Obayashi-Haseko Construction Joint Venture
■Management Company/Haseko Community Co., Ltd.
■Management Type/Fully entrusted (Permanent onsite staff)
■Other/Elevator, Kids room, Party room, Delivery box, Numerous front desk services (taxi arrangement, laundry agency, courier shipping, catering, etc.)

 


 
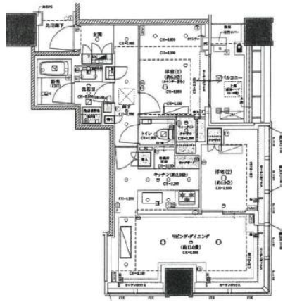
■Floor Area/61.53㎡ (Wall-center)
■6th Floor
■Management Fee/23,775 yen (Monthly)
■Repair Reserve Fund/7,940 yen (Monthly)
■Parking/37,000 yen〜50,000 yen/month
■Current Status/Vacant
■Handover/To be consulted