トップページ | Object Intelligence | Grande Maison Shirogane no Mori The Tower

 
■Property Name / Grande Maison Shirokane no Mori The Tower
■Location/6-16-25 Shirokane, Minato-ku, Tokyo
■Transportation/Tokyo Metro Namboku Line, Toei Mita Line “Shirokanedai” station 11 min. walk Tokyo Metro Hibiya Line “Hiroo” station 14 min. walk JR Yamanote Line, Saikyo Line, Shonan Shinjuku Line “Ebisu” station 16 min. walk
■Land rights/ownership
■Land area/6,889.07㎡ (equity interest: 6,825/ 2,530,330)
■Structure/Reinforced concrete, 30 floors above ground and 1 basement floor, 22nd floor
■area zoned for use/Type 1 residential area, semi-industrial area
■Total units/334
■Year Built/May 2015
■Seller/Sekisui House, Ltd.
■Construction Company/Taisei Corporation
■Management Company/Mitsubishi Jisho Community Co.
■Management method/full-time consignment (full-time)
■Parking/No vacancy
■Pets/ Consultations (Approval required, subject to detailed usage rules)
■Office use/not available
■Main facilities/elevator, auto-lock


 
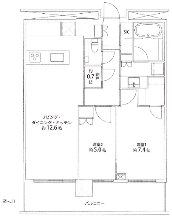
■Exclusive area/68.25㎡ (wall core)
■Balcony area/14.04㎡
■22nd floor
■Management fee/21,300 yen (monthly)
■Reserve for repairs / 20,500 yen (monthly)
■SES system usage fee / 1,423 yen (monthly)
■Current Condition/Vacancy
■Delivery/Immediately possible (after payment of the balance)
 
 
※In the event of any discrepancy between the renovation details shown in the drawings and the current conditions, the current conditions will take precedence.
※The sound insulation performance indicated is the performance of the flooring material alone, so this performance may not be achieved in the actual building.
※When a mediation contract and a sales contract are concluded, our rule “exclusion clause of antisocial forces” is attached as a special clause.
※A separate contract, usage fees and equipment such as tuners may be required.